Home
Friday 30 January 2026

Parolles Road Whitehall Park N19 3RE
London
N19 3RE


Sale Price £1,600,000 Freehold


SUPERB FAMILY HOUSE

Occupying a slightly elevated position on this ever-popular tree lined road, this truly delightful warm and inviting three storey FIVE BEDROOM Victorian gem enjoys a far-reaching City view, period fireplaces and fine character embellishments. The ground floor accommodation flows beautifully, ideal for entertaining and day to day living alike. Natural light floods the extensively fitted generously sized Kitchen Diner which offers scope to extend into the side return should you desire subject to normal consents.

Tucked away between Highgate, Archway and Crouch End, Parolles Road sits within the community orientated Whitehall Park conservation area where the majority of property remain as houses rather than flats, thus making it a very family friendly place to put down roots. Schools to hand, both private and state are numerous. Archway underground station and many bus routes are close to hand.

Five Bedrooms
En Suite Shower Room
Bathroom
Two Interconnecting Character Receptions
Fitted Kitchen Diner
Garden
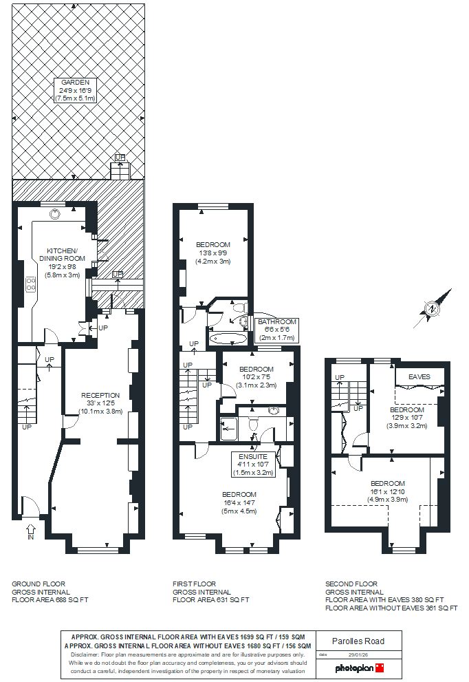
Approx.1680 SQ FT / 156 SQM



Facade

Hallway

Front Reception

Rear Reception

Receptions - 10.06m (33ft 0in) x 3.78m (12ft 5in)

Kitchen Diner - 5.84m (19ft 2in) x 2.64m (8ft 8in)

Bedroom 1 - 4.98m (16ft 4in) x 4.44m (14ft 7in)

Bedroom 1.

En Suite Shower - 3.23m (10ft 7in) x 1.5m (4ft 11in)

Bedroom 2 - 4.17m (13ft 8in) x 2.97m (9ft 9in)

Bedroom 3 - 3.1m (10ft 2in) x 2.26m (7ft 5in)

Bathroom - 1.98m (6ft 6in) x 1.68m (5ft 6in)

Bedroom 4 - 4.9m (16ft 1in) x 3.91m (12ft 10in)

Bedroom 4 City View

Bedroom 5 - 3.89m (12ft 9in) x 3.23m (10ft 7in)

Garden - 7.54m (24ft 9in) x 5.11m (16ft 9in)

 
Floorplan